Свободного назначения 250 кв.м.
Стоимость аренды
462150
руб./месяц
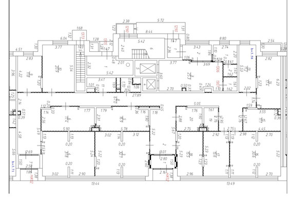
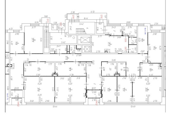
Арт. 123132995 Сдается помещение свободного назначения, общая площадь 350 кв.м. по ул. Кирова, 17, к.1, г. Домодедово. В настоящее время заезжает один арендатор (зона, выделенная красным цветом на плане).Остаток площади 237 кв.м. предлагается в аренду.Можно арендовать часть помещения.Отдельный вход с улицы.Престижная локация с высокой проходимостью!Арендные каникулы, условия оговариваются при встрече.
Звоните! Записывайтесь на показ! #8888846# Общая стоимость: 462150 руб./месяц Этаж/этажность: 1/17 Агентам: Не звонить |
2180204 07 Ноября 2025 просмотров 28 |
Добавить комментарий
Похожие объявления












